Un appartement familial de 149m2 en dernier étage avec terrasse
La situation en dernier étage de cet appartement familial de 149m2 lui permet deux choses très agréables, une terrasse et une cheminée
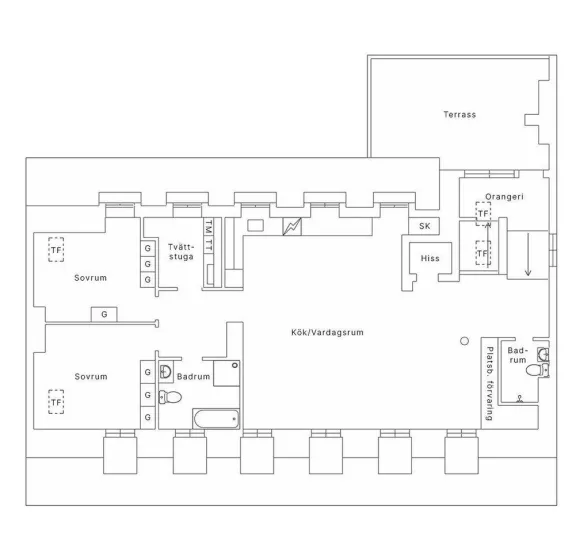
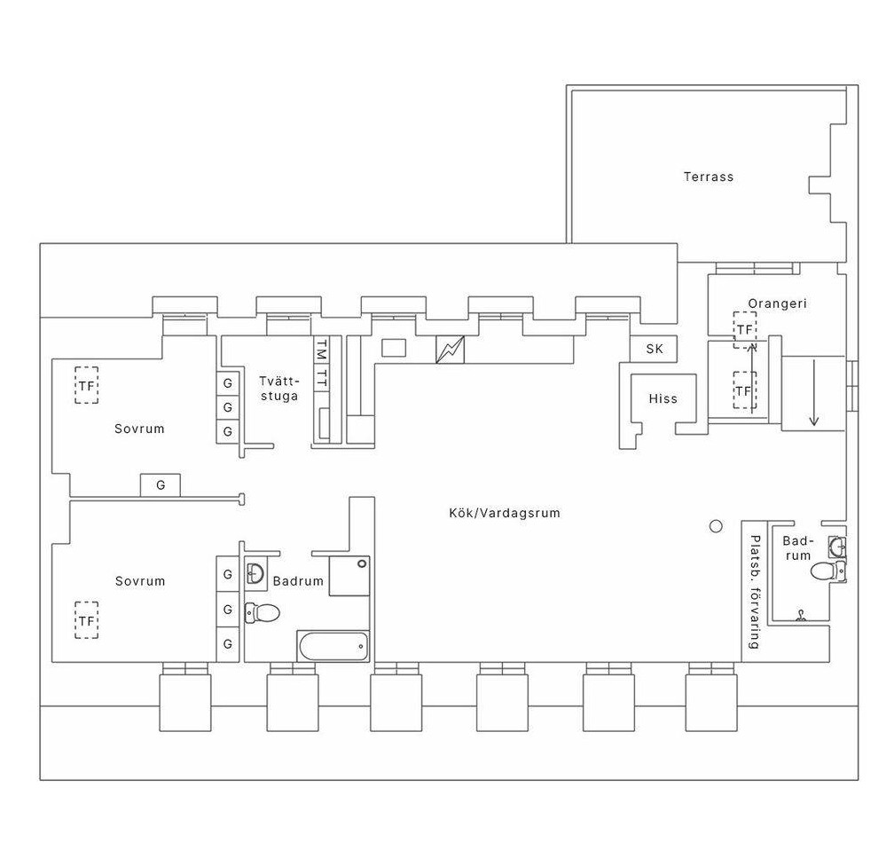
La situation en dernier étage de cet appartement familial de 149m2 lui permet de posséder deux éléments très agréables, une terrasse en plein ciel, et une cheminée dans le salon, un modèle en acier noir Hétérofocus de chez Focus. Situé dans un bâtiment construit en 1929 à Stockholm, dans les combles, il présente des volumes atypiques et multi-niveaux qui lui donnent beaucoup de charme.
Depuis la grande pièce de vie qui comporte le salon, la cuisine ouverte et la salle à manger, on accède par un petit escalier à la terrasse de 20m2 qui augmente ainsi la surface de vie de cet appartement. La décoration est un mélange de style, du contemporain au vintage, du design comme dans la salle de bain, à l'industriel avec la présence des verrières, avec beaucoup de couleurs neutres et quelques éclats de couleur pour lier les divers éléments entre-eux.
The top-floor location of this 149m2 family flat gives it two very pleasant features: a sky terrace and a fireplace in the living room, a black steel Hétérofocus model from Focus. Located in the attic of a building built in Stockholm in 1929, the atypical, multi-level volumes give this apartment a great deal of charm.
From the large living room, which includes the lounge, open-plan kitchen and dining room, a small staircase leads up to the 20m2 terrace, adding to the flat's living space. The decor is a mix of styles, from contemporary to vintage, from designer, as in the bathroom, to industrial with the glass panels, with lots of neutral colours and a few splashes of colour to tie the various elements together.
149m2
Cet appartement familial de 149m2 avec une terrasse à Stockholm est en vente sur le site Hemnet
This 149m2 family flat with terrace in Stockholm is for sale on the Hemnet website








Depuis la grande pièce de vie qui comporte le salon, la cuisine ouverte et la salle à manger, on accède par un petit escalier à la terrasse de 20m2 qui augmente ainsi la surface de vie de cet appartement. La décoration est un mélange de style, du contemporain au vintage, du design comme dans la salle de bain, à l'industriel avec la présence des verrières, avec beaucoup de couleurs neutres et quelques éclats de couleur pour lier les divers éléments entre-eux.
A 149m2 top-floor family flat with terrace
The top-floor location of this 149m2 family flat gives it two very pleasant features: a sky terrace and a fireplace in the living room, a black steel Hétérofocus model from Focus. Located in the attic of a building built in Stockholm in 1929, the atypical, multi-level volumes give this apartment a great deal of charm.
From the large living room, which includes the lounge, open-plan kitchen and dining room, a small staircase leads up to the 20m2 terrace, adding to the flat's living space. The decor is a mix of styles, from contemporary to vintage, from designer, as in the bathroom, to industrial with the glass panels, with lots of neutral colours and a few splashes of colour to tie the various elements together.
149m2
Cet appartement familial de 149m2 avec une terrasse à Stockholm est en vente sur le site Hemnet
This 149m2 family flat with terrace in Stockholm is for sale on the Hemnet website
Shop the look !




Livres































Commentaires